开云(中国)
关于群喜
产品展示
服务中心
招商加盟
联系我们
映美医疗门>>
服务中心
防伪查询
订货须知
订单流程
安装说明
安装流程
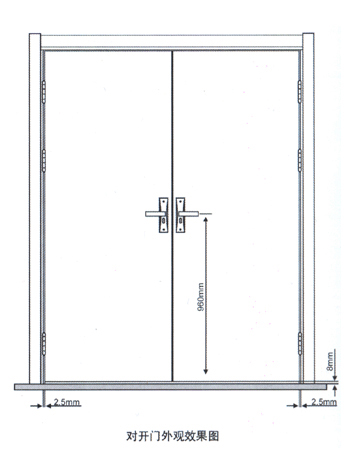
门扇剖面图
合页、窗套
开云在线开户
电话: 0579-87136638 87136639
手机:13738967122
网站:http://www.brushlessmotordesign.com
邮箱/Email:845294671@qq.com
您所在的位置:
开云(中国)
> 门扇剖面图
爱游戏(ayx)中国官方网站-登录入口
|
华体买球中国有限公司
|
乐动网页版登录入口
|
开云游戏app平台
|
乐鱼在线登录
|
ky
|
开云手机入口
|
乐鱼web版登录入口
|
华体平台
|